budynek mieszkalny jednorodzinny [BAMJ1]

Obiekt o charakterze rezydencjonalnym z reprezentacyjną klatką schodową i salonem otwartym na dwie kondygnacje z efektownym oknem fasadowym. Jasna, minimalistyczna elewacja z dużymi przeszkleniami została wzbogacona o eleganckie detale – gzymsy oraz szprosy w oknach – które podkreślają klasyczny, a zarazem nowoczesny charakter budynku.

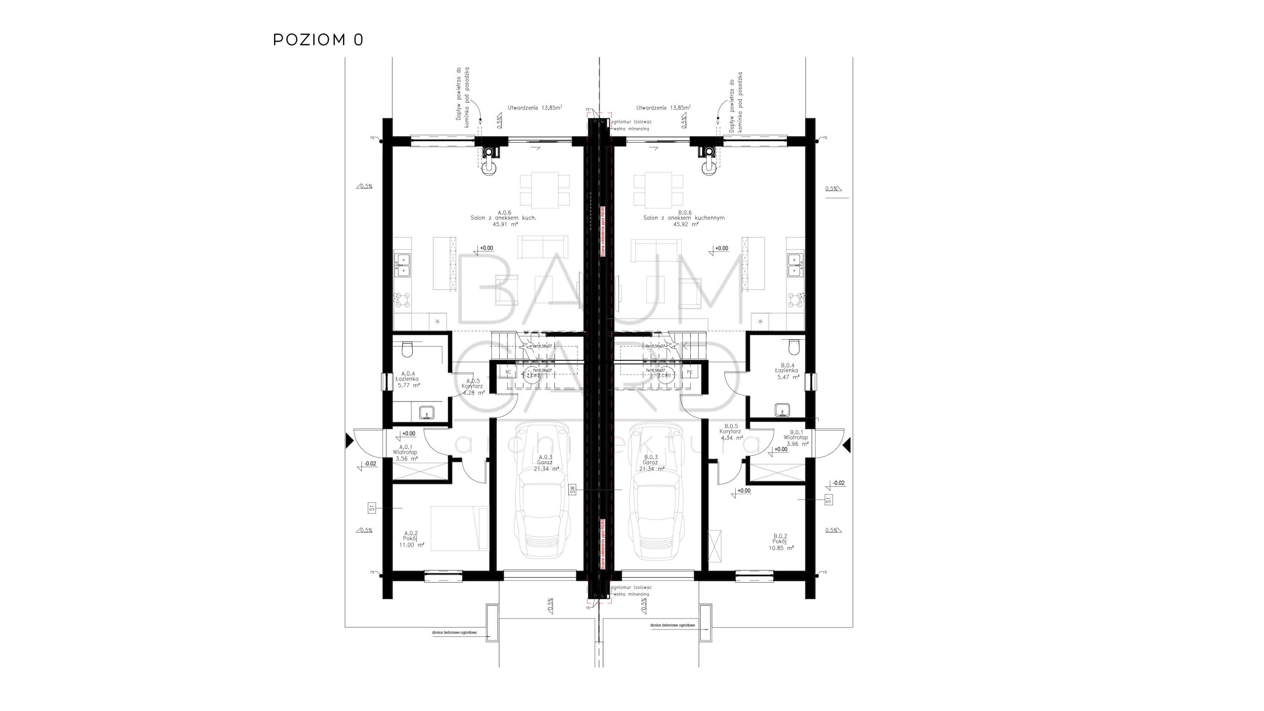
budynki mieszkalne jednorodzinne w zabudowie bliźniaczej [bAMJB1]

Obiekty zostały zaprojektowane w technologii szkieletu drewnianego, posadowione na płycie fundamentowej, z prostymi dachami dwuspadowymi i dużymi przeszkleniami od strony ogrodu. Centralnym elementem wnętrza jest salon rozciągający się przez dwie kondygnacje, zapewniający otwartą przestrzeń i dobre doświetleniem.

budynek mieszkalny jednorodzinny dwulokalowy [BAMJD1]

Budynek mieszkalny dwulokalowy z oddzielnymi wejściami do każdego lokalu oraz garażami wbudowanymi w bryłę. Charakterystycznym elementem są wykusze z płaskim dachem i pionowymi drewnianymi wstawkami. Elewacja wykończona w zestawieniu bieli, odcieni szarości oraz elementów drewnianych.